Millennium Clinic
The Millennium Clinic in Kazan is a modern multidisciplinary medical hospital complex with a wide range of outpatient services, a 300-bed hospital with a focus on surgical treatment of sports injuries and orthopaedic prosthetics, a children's clinic and its own training center for specialists, as well as a hotel complex.
The clinic is equipped to the highest world standards and can accommodate more than 150,000 patients a year and perform up to 25,000 operations.
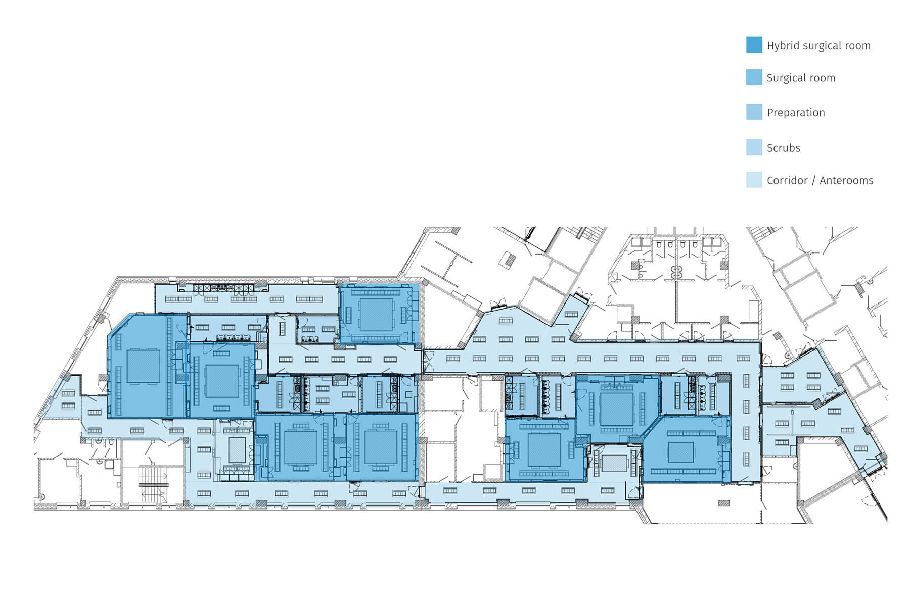
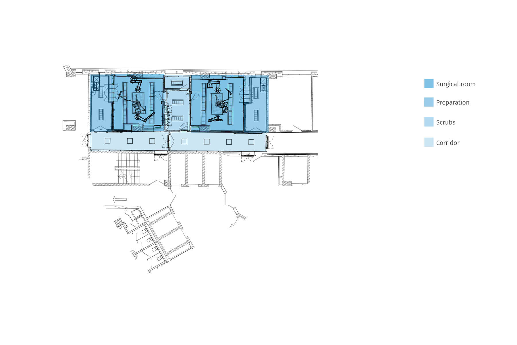
The heart of the clinic is the surgical block designed and built by HT Group, which includes 15 operating rooms with different profiles, including an angiographic operating room equipped with a robotic system that allows diagnostic surgery to be performed with intravascular access as well as other high-precision surgical procedures.






























