Cantonal Hospital St. Gallen, Switzerland
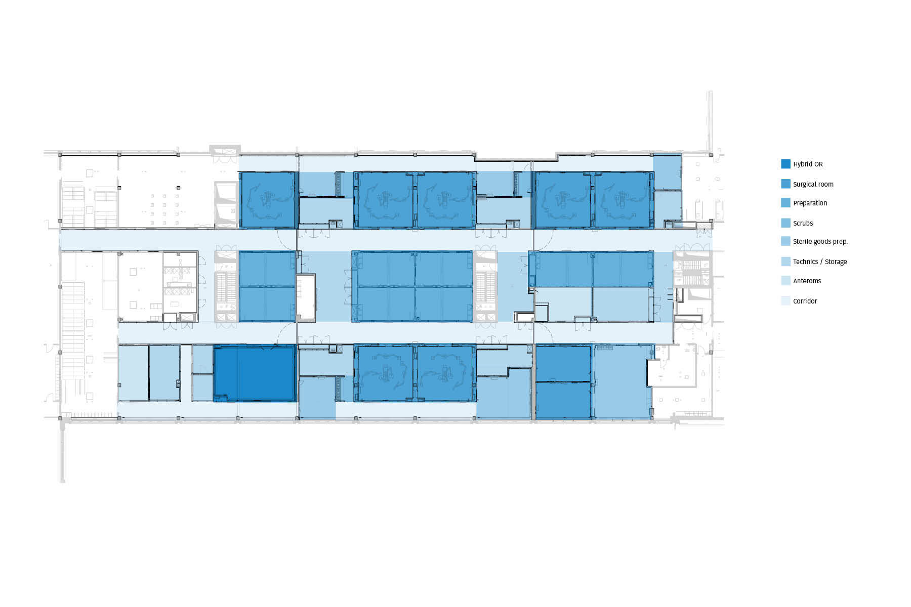
After almost six years of construction, St. Gallen Cantonal Hospital will open the newly constructed clinic building H07A in summer 2024 - a spacious entrance hall with outpatient clinics, the intensive care area and the operating department with 10 highly equipped operating rooms in prefabricated construction on three floors. In addition, a 12-storey bed tower provides space for wards and a new cafeteria with a roof garden.
With the new building, the St. Gallen Cantonal Hospital is meeting the increased demands of patients in terms of room sizes, comfort and mobility.
| Construction | 09/2022-05/2024 |
| Project team | Markus Fürsich, Steffen Schinkel |
| Architect | Fawad Kazi Architekt GmbH |
| Solution | 10 Operating rooms; Hybrid-OR; HT Control room management; OT ORIS video routing; LED/RBG illumination; x-ray protection; slinding doors; pre-/post OR; Corridors; technical and stock rooms
|


























